Building permits allow your municipality to protect the interests of individuals and the community as a whole. By reviewing and approving construction plans before any work is done, the municipality can ensure that buildings meet the standards. The Building Code ensures health and safety and fire protection of buildings.
Building department inspectors adhere to a code of conduct and are responsible for ensuring that the Ontario Building Code is respected and enforced.
Planning your work protects your investment!
Important Information
Before you begin the process, check with the Planning Department to make sure your project is compliant. Issuing a building permit can take several weeks, depending on the complexity of the project. It is therefore a good practice to plan your project in advance.
In order to obtain a Building Permit, the application form must be completed and submitted with all required documents. This application can be emailed to construction@clarence-rockland.com or submitted in person at City Hall at 1560 Laurier Street, Rockland, during regular business hours.
A lot elevation plan may be required for an application for a detached garage, shed or pool permit.
A building permit is required for the following:
- any new construction, including apartments, of residential, agricultural, commercial, industrial or institutional buildings
- the addition of a carport, garage, new rooms or floors
- any alteration to a building, such as the addition of a deck, balcony, canopy or dormer;
- excavation work for the construction or expansion of a basement
- construction of a building with a floor area of more than 161.5 square feet (garage or other);
- replacement of doors or windows when the structure must be modified;
- renovations, repairs or structural modifications to a building (removal of a partition or load-bearing wall)
- installation of a wood stove, furnace, fireplace or chimney
- finishing a basement;
- installation of a sign or structural tower;
- change in the use of a building (example: from residential to commercial);
- installation of a new roof structure on a building (except replacement of roof shingles)
- construction of a retaining wall greater than 1 metre in height as defined by the Building Code
- installation or modification of the plumbing system;
- installation of solar panels on a building.
Online banking services:
- Payments can be made online with participating financial institutions
Steps to follow:
- Add vendor
- Search for ‘’Cite de Clarence-Rockland’’ and select ‘’PERMIS DE CONSTRUCTION ‘’
- Insert your 7-digit permit number (ex.2022103)
- The payment will be sent to us by your financial institution
Cheque
- Payments by cheque are accepted and can be sent by mail or left in the drop box located at 1560 Laurier Street, Rockland, K4K 1P7
- Post-dated cheques are accepted
Please make your cheque payable to The City of Clarence-Rockland
Credit Card
Building and construction-related fees may also be paid by credit card using the One Time Payment option : Account Information: One Time Payment: City of Clarence-Rockland
Wire Transfer
Payments by wire transfer are accepted. Bank fees may apply and are the responsibility of the payer.
To obtain wire transfer instructions, please contact the Building Department prior to making the payment.
Practical Guides
Guide for Adding a Second Unit to an Existing Home (Ministry of Municipal Affairs and Housing)
Ensure you meet all the zoning requirements prior to submitting your permit application. You may contact the Planning department for a request of information by completing the General Inquiry Form.
Application forms :
- Completed application for a Permit to Construct or Demolish; available on our web site.
- Completed Schedule 1: Designer information;
- Site plan showing location of new structure, existing structures, septic system and well location if applicable. Dimensions are required from proposed structure to property lines;
- Letter of authorization by owner (if applicant is not the owner).
Drawings and requirements :
- The homeowner or a qualified BCIN designer can produce the required drawings;
- The drawings must be to scale;
- Foundation or slab plans; If slab exceed 592 sq. ft. (55 m²) an Ontario Professional Engineer Design is Required;
- Plans showing location of openings (doors and windows) and direction of trusses;
- Elevations plans showing finishes;
- Cross section plans showing composition of floor, walls and roof;
- Plans shall show all structural elements
- The fees are listed in User Fee By-Law 2023-10, Schedule G, Construction.
Documents required to close file:
- Final electrical report (Electrical safety authority) 1-877-372-7233 (if applicable).
The above information is for general purpose, some requirements may vary depending on the project.
If you require additional information, please contact the Building division at 613-446-6022 ext.2254 or by email at construction@clarence-rockland.com

Ensure you meet all the zoning requirements prior to submitting your permit application. You may contact the Planning department for a request of information by completing the General Inquiry Form.
Application forms :
- Completed application for a Permit to Construct or Demolish; available on our web site.
- Completed Schedule 1: Designer information;
- Site plan showing location of new deck, existing structures, septic system and well location if applicable. Dimensions are required from proposed structure to property lines;
- Letter of authorization by owner (if applicant not the owner)
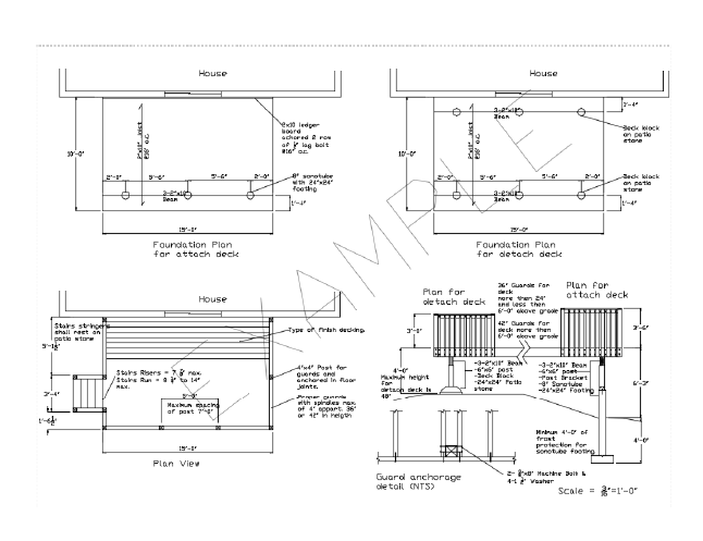
Drawings and requirements :
- The homeowner or a qualified BCIN designer can produce the required drawings;
- The drawings must be to scale;
- Foundation / Footing plans; showing anchorage of structure and spans;
- Plans showing beams, joists, posts, sizes and spans.
- Elevations plans showing deck height, railing specs and finishes;
- Cross section plans showing all structural details.
- The fees are listed in User Fee By-Law 2023-10, Schedule G, Construction.
The above information is for general purpose, some requirements may vary depending on the project.
If you require additional information, please contact the Building division at 613-446-6022 ext. 2254 or by email at construction@clarence-rockland.com

Ensure you meet all the zoning requirements prior to submitting your permit application.
You may contact the Planning department for a request of information by completing the General Inquiry Form.
Application form :
- Completed application for a Permit to Construct or Demolish; available on our web site.
- Completed Schedule 1: Designer information;
- South Nation Conservation letter for Septic System, 1-877-984-2948 (if applicable);
- Letter of authorization by owner (if applicant is not the owner).
Drawings and requirements:
- The homeowner or a qualified BCIN designer can produce the required drawings;
- The drawings must be to scale;
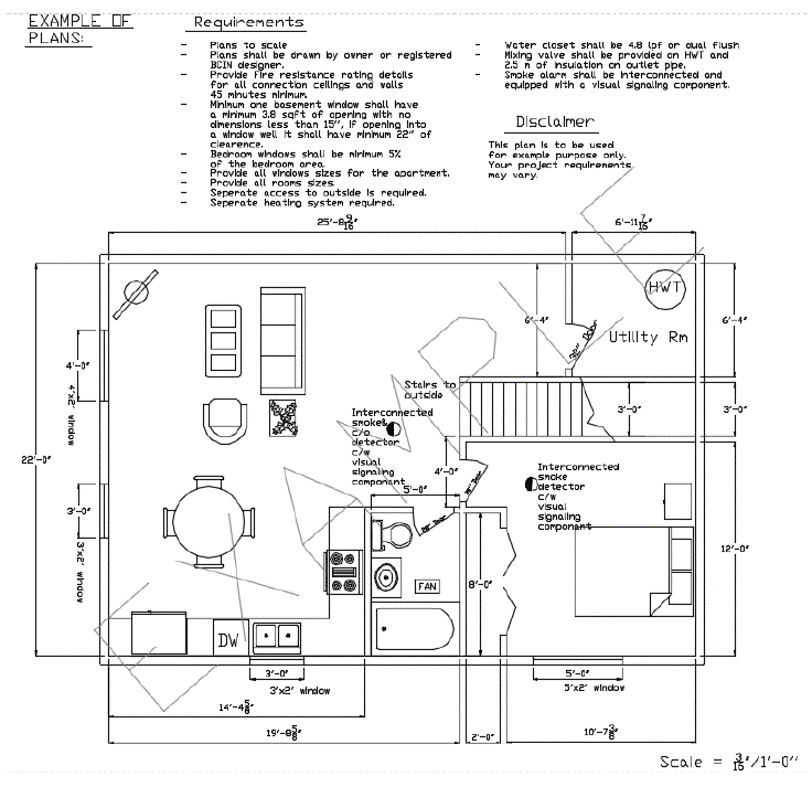
- All exits, smoke alarms/carbon monoxide locations;
- Fire separations including the rating of the construction;
- The size of the existing dwelling and proposed accessory apartment;
- The complete dimensions and location of all windows and doors (existing and new);
- The size of all the rooms of the accessory apartment;
- The type of heating system for the existing dwelling and accessory apartment (needs to be separate heating system);
- Location of all plumbing fixtures (sinks, toilet, shower…);
- Proper fire donuts on all plumbing going into fire separation;
- A proper shut-out valve on main water line inside the new accessory apartment.
- The fees are listed in User Fee By-Law 2023-10, Schedule G, Construction.
Documents required for Occupancy :
- Final electrical report (Electrical safety authority) 1-877-372-7233;
- Final septic report, if a permit was required by South Nation Conservation;
- Ventilation report, if new forced air system was installed.
The above information is for general purpose, some requirements may vary depending on the project.
If you require additional information, please contact the Building division at 613-446-6022 ext.2254 or by email at construction@clarence-rockland.com

Ensure you meet all the zoning requirements prior to submitting your permit application. You may contact the Planning department for a request of information by completing the General Inquiry Form.
Application forms :
- Completed application for a pool/spa permit; available on our web site.
- Site plan showing location of pool/spa, existing structures, septic system and well location if applicable. Dimensions are required from proposed pool/spa to property lines;
- Letter of authorization by owner (if applicant not the owner).
Drawings and requirements :
- Drawings must be legible ;
- The drawings must contain all information relating to the installation of the pool/spa (heater, filter etc.) ;
- If a deck is attached to the pool and forms the barrier, the height of deck, details of guards and access doors are required to be shown on the drawings;
- The fees are listed in User Fee By-Law 2023-10, Schedule G, Construction.
The municipal By-law 2013-47 is the applicable regulation for the installation of a pool/spa.
The above information is for general purpose, some requirements may vary depending on the project.
If you require additional information, please contact the Building division at 613-446-6022 ext. 2254 or by email at construction@clarence-rockland.com

Ensure you meet all the zoning requirements prior to submitting your permit application.
You may contact the Planning department for a request of information by completing the General Inquiry Form.
Application form :
- Completed application for a Permit to Construct or Demolish; available on our web site.
- Completed Schedule 1: Designer information;
- Letter of authorization by owner (if applicant is not the owner).
Drawings and requirements:
- A qualified BCIN designer can produce the required drawings;
- The plans must be to scale and be comprised of foundation, all storeys, elevations, cross sections, details drawings;
- SB-12 form and Hvac design;
- Pre-engineered floor and truss plans from the manufacturer if applicable;
- Site location plan and grading plan stamped by a Certified Surveyor or Professional Engineer;
- The deed for the property;
- Culvert permit if a new entrance is proposed;
- Water connexion permit if a new service is required;
- Septic permit if applicable (contact South Nation Conservation for this permit).
- The fees are listed in User Fee By-Law 2023-10, Schedule G, Construction.
The above information is for general purpose, some requirements may vary depending on the project.